Descrizione

    Vivi e Respira anche tu la leggerezza di una abitazione in Classe A4, le nostre nuove abitazioni con energie rinnovabili e bassissima emissione di CO2

    Consegna 12/2026

    Elegante e raffinato appartamento inserito in moderno contesto di nuova realizzazione in una delle zone più esclusive della città, in posizione centralissima e riparata dal traffico, dotato di tutte le tecnologie all'avanguardia in merito a efficientamento energetico e risparmio di risorse, con massima classificazione energetica A4

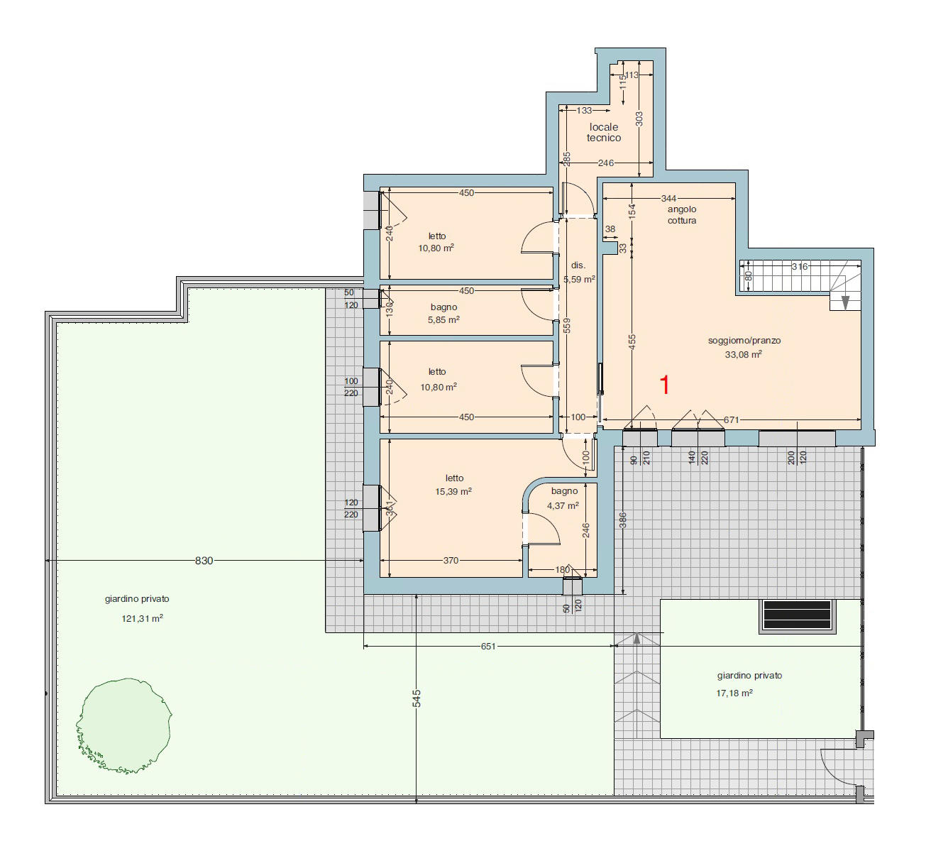
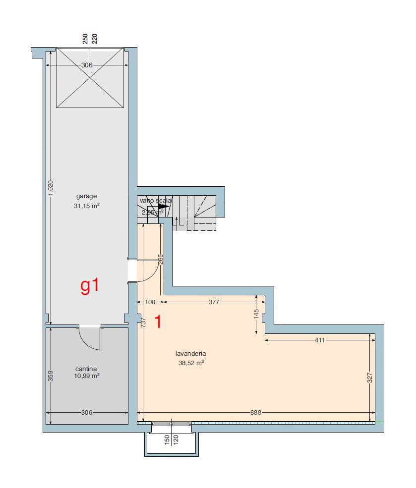
    L'immobile è posto al pian terreno, dotato di ingresso indipendente e ampio giardino privato angolare di 139mq, composto dall'ampio soggiorno con zona living e zona cottura per un totale di 33mq, da cui si accede alla tavernetta interrata tramite la scala interna e, sempre al pian terreno, al reparto notte: tre comode camere da letto (padronale e 2 doppie), due bagni finestrati e un comodo locale tecnico perfetto per essere adibito a ripostiglio/lavanderia ad incrementare il comfort e la gestione della casa

    Compreso nel prezzo troviamo il garage al piano interrato collegato direttamente alla tavernetta

    Possibilità di acquistare un posto auto privato al coperto 

    Ottimo e fornito capitolato offerto, con ampia scelta di finiture, rivestimenti e dotazioni, tra cui sono già compresi il riscaldamento ed il raffrescamento con pannelli radianti a pavimento, ventilazione meccanica controllata, pompa di calore in geotermia, decalcificazione dell'acqua potabile, impianto fotovoltaico condominiale, finestre in PVC con avvolgibili motorizzati e coibentati, predisposizione per impianto di allarme volumetrico e perimetrale, predisposizione impianto di aspirazione centralizzata

    NESSUNA SPESA DI INTERMEDIAZIONE IMMOBILIARE

    Dettagli
    • Piano PT
    • Riscaldamento Semi-Centralizzato
    • Arredo Non Arredato
    • Cantina No
    • Cucina abitabile No
    • Garage Si
    • Giardino Si
    • Mansarda No
    • Bagni 2
    • Camere da letto 3
    • Soggiorni 1
    • Numero unità abitative 7
    • Ripostiglio Si
    • Stato d'uso Nuovo
    • Taverna Si
    • Terrazzo No
    • Ultimo Piano No
    Efficienza energetica
    A4
    • Riscaldamento: Semi-Centralizzato
    • EPTOT: 40
    Richiedi informazioni sull'immobile

    (leggi informativa privacy)

    Informativa privacy form di richiesta contatto

    La presente informativa ("Informativa") ha lo scopo di descrivere le modalità di gestione dei dati personali degli utenti che compilano il form di richiesta contatti presente sul sito internet www.agenziasansoni.it (il "Sito").

    Titolare del trattamento dei dati Il titolare del trattamento dei dati personali è Agenzia Sansoni con sede legale in Via Magellano 1, 47121 Forlì (FC), contattabile all'indirizzo email info@agenziasansoni.it ("Titolare").

    Tipologie di dati trattati I dati personali trattati attraverso il form di richiesta contatti sono quelli forniti volontariamente dall'utente al momento della compilazione del form. Tali dati potrebbero includere nome, cognome, indirizzo email e numero di telefono.

    Finalità del trattamento I dati personali degli utenti sono trattati al fine di rispondere alle richieste di contatto inviate attraverso il form e di fornire le informazioni richieste dall'utente.

    Modalità del trattamento I dati personali degli utenti sono trattati con strumenti elettronici e/o manuali, nel rispetto delle disposizioni di legge in materia di sicurezza e riservatezza.

    Conservazione dei dati I dati personali degli utenti verranno conservati per il tempo strettamente necessario al perseguimento delle finalità indicate nella presente Informativa e comunque non oltre i termini di legge.

    Diritti degli utenti Gli utenti del Sito hanno il diritto di accedere, rettificare, cancellare e limitare il trattamento dei propri dati personali, nonché di opporsi al loro trattamento in qualsiasi momento. Tali diritti possono essere esercitati inviando una richiesta al Titolare all'indirizzo email info@agenziasansoni.it.

    Consenso al trattamento dei dati Compilando il form di richiesta contatti e fornendo i propri dati personali, l'utente accetta la presente Informativa e autorizza il Titolare al trattamento dei propri dati personali per le finalità indicate nella stessa. L'utente ha il diritto di revocare il proprio consenso in qualsiasi momento inviando una richiesta al Titolare all'indirizzo email info@agenziasansoni.it.