Descrizione

    Vivi e Respira anche tu la leggerezza di una abitazione in Classe A4, le nostre nuove abitazioni con energie rinnovabili e bassissima emissione di CO2

    Consegna 02/2027

    Elegante e raffinato attico inserito in moderno contesto di nuova realizzazione in una delle zone più servite della città, adiacente al centro e ad aree verdi pubbliche, dotato di tutte le tecnologie all'avanguardia in merito a efficientamento energetico con utilizzo di pannelli fotovoltaici e geotermia, con massima classificazione energetica A4

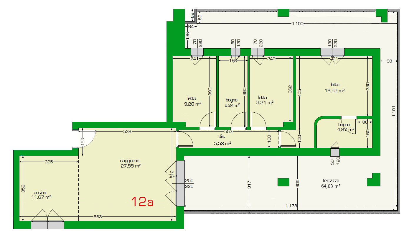
    L'immobile è posto al secondo piano con ascensore, composto dall'ampia e luminosa zona living con soggiorno cucina di 40mq ed il primo accesso alla splendida terrazza di 64,12 mq che serve tutto l'immobile , reparto notte con tre comode camere da letto, due bagni.

    Compreso nel prezzo troviamo il garage

    Possibilità di acquistare un posto auto privato e cantina 

    Ottimo e fornito capitolato offerto, con ampia scelta di finiture, rivestimenti e dotazioni, tra cui sono già compresi il riscaldamento ed il raffrescamento con pannelli radianti a pavimento, ventilazione meccanica controllata, pompa di calore in geotermia, decalcificazione dell'acqua potabile, impianto fotovoltaico condominiale, finestre in PVC con avvolgibili motorizzati e coibentati, predisposizione per impianto di allarme volumetrico e perimetrale, predisposizione impianto di aspirazione centralizzata

    NESSUNA SPESA DI INTERMEDIAZIONE IMMOBILIARE

    Dettagli
    • Piano 2P
    • Riscaldamento Conta calorie
    • Cantina No
    • Cucina abitabile Si
    • Garage Si
    • Giardino No
    • Mansarda No
    • Bagni 2
    • Camere da letto 3
    • Ripostiglio No
    • Stato d'uso Nuovo
    • Taverna No
    • Terrazzo Si
    • Ultimo Piano Si
    Efficienza energetica
    A4
    • Riscaldamento: Conta calorie
    • EPTOT:
    Richiedi informazioni sull'immobile

    (leggi informativa privacy)

    Informativa privacy form di richiesta contatto

    La presente informativa ("Informativa") ha lo scopo di descrivere le modalità di gestione dei dati personali degli utenti che compilano il form di richiesta contatti presente sul sito internet www.agenziasansoni.it (il "Sito").

    Titolare del trattamento dei dati Il titolare del trattamento dei dati personali è Agenzia Sansoni con sede legale in Via Magellano 1, 47121 Forlì (FC), contattabile all'indirizzo email info@agenziasansoni.it ("Titolare").

    Tipologie di dati trattati I dati personali trattati attraverso il form di richiesta contatti sono quelli forniti volontariamente dall'utente al momento della compilazione del form. Tali dati potrebbero includere nome, cognome, indirizzo email e numero di telefono.

    Finalità del trattamento I dati personali degli utenti sono trattati al fine di rispondere alle richieste di contatto inviate attraverso il form e di fornire le informazioni richieste dall'utente.

    Modalità del trattamento I dati personali degli utenti sono trattati con strumenti elettronici e/o manuali, nel rispetto delle disposizioni di legge in materia di sicurezza e riservatezza.

    Conservazione dei dati I dati personali degli utenti verranno conservati per il tempo strettamente necessario al perseguimento delle finalità indicate nella presente Informativa e comunque non oltre i termini di legge.

    Diritti degli utenti Gli utenti del Sito hanno il diritto di accedere, rettificare, cancellare e limitare il trattamento dei propri dati personali, nonché di opporsi al loro trattamento in qualsiasi momento. Tali diritti possono essere esercitati inviando una richiesta al Titolare all'indirizzo email info@agenziasansoni.it.

    Consenso al trattamento dei dati Compilando il form di richiesta contatti e fornendo i propri dati personali, l'utente accetta la presente Informativa e autorizza il Titolare al trattamento dei propri dati personali per le finalità indicate nella stessa. L'utente ha il diritto di revocare il proprio consenso in qualsiasi momento inviando una richiesta al Titolare all'indirizzo email info@agenziasansoni.it.